
Строительная Компания
Мы строим дома в Крыму
+7 (978) 102-82-92
ОСТАВЬТЕ ЗАЯВКУ И МЫ ПЕРЕЗВОНИМ ВАМ
Подбор участков
Строительство
Ремонт и отделочные работы
Камины, барбекю, мангалы
Инженерные коммуникации
Получите
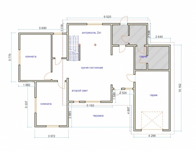
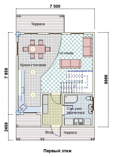
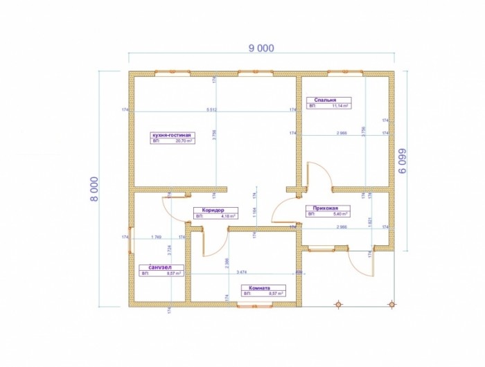
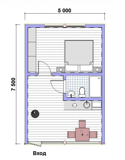
3 варианта проектов домов
БЕСПЛАТНО
Мы свяжемся с вами в течение 30 минут
Заключаем официальные договоры на все этапы работ. Гарантируем отсутствие скрытых и дополнительных платежей. Вы платите столько – сколько указано в договоре!
Все работы выполняют штатные бригады под руководством прорабов и инженеров. Осуществляем технадзор. Используем спецтехнику для монтажа винтовых и буронабивных свай и доставки материалов.
Гарантия на все проведенные работы, закреплена документально. Бесплатное устранение дефектов в течении всего срока гарантии. Вся продукция сертифицирована.
Подбор участков для строительства по всему Крыму. Большая база данных. С нами работают все ведущие Агентства Недвижимости Крыма. Для наших заказчиков данная услуга абсолютно БЕСПЛАТНА. Мы работаем на результат.
Строим дома, бани, гостиницы, магазины, гаражи, бассейны. Материал: Ракушка, Сип-панель, Пенобетон, Каркас. Большой выбор проектов, а так же строим по Вашим проектам. Строительство и отделка до любой стадии (стены, крыша, фундамент).
Производим ремонт и отделку домов, квартир, офисов, складских помещений, подъездов, утепление фасадов, замена кровельного покрытия, а так же электрика, сантехника и косметический ремонт.
Комплексное обслуживание и монтаж инженерных систем. Для нас приемлемы любые объекты: начиная от заводов и складских помещений, заканчивая частными домами, местами общественного пользования и торговыми площадками.
Нами построено:
156 домов
сейчас строится:
3 дома
производим ремонт и отделку:
Ремонт домов, квартир, офисов в т.ч. косметический
Бетонные работы, фундаменты, опалубка
Кровельные работы, меж этажные перекрытия
Утепление, отделка фасадов
Проводим все виды инженерных коммуникаций: электрические сети, водопровод, отопление, септики
Укладка теплых полов, плитки, ламината
Монтаж, демонтаж окон, дверей
Укладка тротуарной плитки, брусчатки, отделка цоколя диким камнем
Монтаж, демонтаж построек, вывоз строительного мусора
Собирали деньги на дом, жили у родителей, снимали, одним словом – маялись. Решили – хватит, поехали, посмотрели. Сначала смотрели каркасно-щитовой дом, но остановились просто на каркасном, чуть исправили проект (убрали гараж, но добавили веранду и навес для машины из поликарбоната) – получилось на те деньги, которые у нас были. Родители отговаривали, мол, накопите еще, но хорошо, что не послушались. Через три месяца вселились в дом, живем уже пол года, всем довольны, тепло, уютно, но главное – это наш дом, пусть и не очень большой, но по очень хорошей цене. И главное – никаких кредитов! Спасибо Михаилу, менеджеру компании Sunny House и всему коллективу, кто принимал участие в строительстве нашего дома!

Юлия
27 лет, г.Феодосия
В прошлом году мы с женой купили участок в пригороде Судака. Давно мечтали об этом, но все как-то не могли собраться. Но вот, наконец-то, подвернулся подходящий вариант – 15 минут до моря, рядом горы, в общем, все удобства.Первым делом стали выбирать, из чего будем строить – хотели, чтобы было быстро и недорого, бюджет весьма ограничен. Практически сразу наткнулись на довольно популярный материал – СИП-панели, отзывы в интернете о них очень разные, поэтому долго сомневались, советовались с друзьями и знакомыми, читали форумы, звонили во многие строительные фирмы, один и тот же проект нам посчитали по-разному, но мы решили выбрать из предложений "Золотую Середину" и оказалось не зря. Спасибо ребятам компании Sunny House. Уже через 2 месяца, мы были со своей мечтой - Дом у моря !Буду Вас рекомендовать.

Виктор
38 лет, г. Москва
Очень довольны построенным домом, заказали в конце февраля, а в апреле уже вселились и благополучно прожили все лето. Это просто замечательно - жить в своем доме!!! даже если он еще не достроен, все равно ни с чем не сравнимое удовольствие, чувствовать себя хозяином на своей земле.
Спасибо компании Sunny House, вы сделали все быстро и профессионально! На следующий год планы достроить вторую половину дома и закончить отделку.
По ощущениям дом из Сип панелей соответствует хорошему деревянному дому. У дочери через неделю жизни в доме полностью прошла аллергия, мы дышим легко и чувствуем себя хорошо.
Всем начинающим, думающим удачи в строительстве!

Наталья и Игорь
34 года, г. Ярославль
ДОМОКОМПЛЕКТ
Комплект СИП панелей и стропильной системы раскроенных по проекту для самостоятельной сборки. Срок изготовления от 7 дней
от 19 500 руб/м2
СТАНДАРТ
Комплект СИП панелей, стропильной системы и перекрытия с монтажом на фундаменте. (сваи/ленточный/монолитная плита)
Для домов свыше 150 м2 в комплектацию входят окна и двери
от 35 000 руб/м2
ПОД КЛЮЧ
Дом с фасадом под чистовую и внутреннюю отделку гипсокартоном, вентиляция и ввод коммуникаций, окна, двери, водосточная система
от 45 000 руб/м2
Остались вопросы?
НАПИШИТЕ свой вопрос
Наш офис
Судак, ул. Феодосийская, д.1 (территория РТП)
+7(978)102-82-92
Будем рады видеть вас у нас в офисе
Запишитесь на встречу
Мы позвоним вам и пригласим к нам в офис. По Вашему желанию проведем экскурсию по строящимся и готовым объектам. Дадим скидку и подробно проконсультируем и расскажем о сроках и материалах строительства.
Запишитесь на встречу у нас в офисе
Строительная компания
Sunny House КРЫМ г.СУДАК
+7 (978) 102-82-92
политика конфиденциальности
Настоящая Политика конфиденциальности персональной информации (далее — Политика) действует в отношении всей информации, которую Сайт ( могут получить о пользователе во время использования им сайта. Согласие пользователя на предоставление персональной информации, данное им в соответствии с настоящей Политикой в рамках отношений с одним из лиц, входящих , распространяется на все лица. Использование Сайта означает безоговорочное согласие пользователя с настоящей Политикой и указанными в ней условиями обработки его персональной информации; в случае несогласия с этими условиями пользователь должен воздержаться от использования Сервисов. 1. Персональная информация пользователей, которую получает и обрабатывает Сайт 1.1. В рамках настоящей Политики под «персональной информацией пользователя» понимаются: 1.1.1. Персональная информация, которую пользователь предоставляет о себе самостоятельно заполнении форм обратной связи, включая персональные данные пользователя. Обязательная для предоставления Сервисов (оказания услуг) информация помечена специальным образом. Иная информация предоставляется пользователем на его усмотрение. 1.1.2 Данные, которые автоматически передаются в процессе их использования с помощью установленного на устройстве пользователя программного обеспечения, в том числе IP-адрес, информация из cookie, информация о браузере пользователя (или иной программе, с помощью которой осуществляется доступ к Сервисам), время доступа, адрес запрашиваемой страницы. 1.2. Настоящая Политика применима только к Сайт. Сайт не контролирует и не несет ответственность за сайты третьих лиц, на которые пользователь может перейти по ссылкам, доступным на сайтах Сайт , в том числе в результатах поиска. На таких сайтах у пользователя может собираться или запрашиваться иная персональная информация, а также могут совершаться иные действия. 1.3. Сайт в общем случае не проверяет достоверность персональной информации, предоставляемой пользователями, и не осуществляет контроль за их дееспособностью. Однако Сайт исходит из того, что пользователь предоставляет достоверную и достаточную персональную информацию по вопросам, предлагаемым в форме регистрации, и поддерживает эту информацию в актуальном состоянии. 2. Цели сбора и обработки персональной информации пользователей 2.1. Сайт собирает и хранит только те персональные данные, которые необходимы для предоставления и оказания услуг (исполнения соглашений и договоров с пользователем). 2.2. Персональную информацию пользователя Сайт может использовать в следующих целях: 2.2.1. Идентификация стороны в рамках соглашений и договоров с Сайт 2.2.2. Предоставление пользователю персонализированных услуг; 2.2.3. Связь с пользователем, в том числе направление уведомлений, запросов и информации, касающихся использования Сервисов, оказания услуг, а также обработка запросов и заявок от пользователя; 2.2.4. Улучшение качества, удобства их использования, разработка услуг;2.2.5. Таргетирование рекламных материалов; 2.2.6. Проведение статистических и иных исследований на основе обезличенных данных. 3. Условия обработки персональной информации пользователя и её передачи третьим лицам 3.1. Сайт хранит персональную информацию пользователей в соответствии с внутренними регламентами конкретных сервисов. 3.2. В отношении персональной информации пользователя сохраняется ее конфиденциальность, кроме случаев добровольного предоставления пользователем информации о себе для общего доступа неограниченному кругу лиц. При использовании отдельных Сервисов пользователь соглашается с тем, что определённая часть его персональной информации становится общедоступной. 3.3. Сайт вправе передать персональную информацию пользователя третьим лицам в следующих случаях: 3.3.1. Пользователь выразил свое согласие на такие действия; 3.3.2. Передача необходима в рамках использования пользователем определенного Сервиса либо для оказания услуги пользователю; 3.3.3. Передача предусмотрена российским или иным применимым законодательством в рамках установленной законодательством процедуры; 3.3.4. Такая передача происходит в рамках продажи или иной передачи бизнеса (полностью или в части), при этом к приобретателю переходят все обязательства по соблюдению условий настоящей Политики применительно к полученной им персональной информации; 3.3.5. В целях обеспечения возможности защиты прав и законных интересов Сайт или третьих лиц в случаях, когда пользователь нарушает Пользовательское соглашение сервисов Сайт . 3.4. При обработке персональных данных пользователей Сайт руководствуется Федеральным законом РФ «О персональных данных». 4. Изменение пользователем персональной информации 4.1. Пользователь может в любой момент изменить (обновить, дополнить) предоставленную им персональную информацию или её часть, а также параметры её конфиденциальности. 5. Меры, применяемые для защиты персональной информации пользователей Сайт принимает необходимые и достаточные организационные и технические меры для защиты персональной информации пользователя от неправомерного или случайного доступа, уничтожения, изменения, блокирования, копирования, распространения, а также от иных неправомерных действий с ней третьих лиц. 6. Изменение Политики конфиденциальности. Применимое законодательство 6.1. Сайт имеет право вносить изменения в настоящую Политику конфиденциальности. При внесении изменений в актуальной редакции указывается дата последнего обновления. Новая редакция Политики вступает в силу с момента ее размещения, если иное не предусмотрено новой редакцией Политики.6.2. К настоящей Политике и отношениям между пользователем и Сайт , возникающим в связи с применением Политики конфиденциальности, подлежит применению право Российской Федерации.

sh-krim@yandex.ru
Ежедневно: с 08:00 до 19:00 час.
Судак, ул. Феодосийская, д.1 (территория РТП)
ОСТАВЬТЕ ЗАЯВКУ И МЫ ПЕРЕЗВОНИМ ВАМ
Политика конфиденциальности
Редактируемый текст
Данный сайт использует Cookie
Редактируемый текст